Jetzt Kapitalanlage in Plauen-Preißelpöhl sichern! Reiheneck-Stadthaus


Versutus GmbH

Exposé 20131257, Plauen

267.288,00 EUR
Verkaufspreis
ca. 333,56 m²
Wohnfläche
16
Zimmer
267.288,00 EUR
Kaufpreis
19.098,00 EUR
Mieteinnahmen p.a. IST
20.013,00 EUR
Mieteinnahmen p.a. SOLL
5,95 % inkl. 19% USt. - zu zahlen je zu 1/2 von Käufer und Verkäufer
Courtage / Provision
ja
Courtage inkl. Mwst
ja
provisionspflichtig
ca. 333,56 m²
Wohnfläche
5
Anzahl Wohneinheiten
16
Zimmerzahl
5
Anzahl Badezimmer
ca. 190 m²
Grundstücksfläche
ca. 333,56 m²
vermietbare Fläche
ca. 333,56 m²
vermietete Fläche
Art der Ausstattung: normal
Gesamtetagenzahl: 4
Heizungsart: Etagenheizung, Zentralheizung
Befeuerung: Gas
Bodenbelag: Fliesen, Laminat, PVC, Teppich
Bauart des Hauses: Massivhaus
Badezimmer: mit Anschluss für Waschmaschinen, mit Dusche
weitere Räume: Abstellraum, Dachboden, Heizraum
barrierefrei: nein
Keller: ja
unterkellert: ja
Garten /-nutzung: nein
Technik: Kabel-TV
Verglasung: doppelt verglast
Fenster: Kunststoff
Türen (außen): Kunststoff
Türen (innen): Furnier
Brunnen: nein
Baumbestand: nein
Baujahr: 1900
Alter: Altbau
Zustandsart: teilweise renoviert
Bauphase: Bau abgeschlossen
Nutzungsart: Anlage / Rendite
vermietet: ja
verfügbar ab: 01.12.2026
Gewerbliche Nutzung möglich: teilweise
Räume veränderbar: teilweise
Energieausweis vorhanden: ja
Energieeffizienzklasse: E
erstellt am: 24.01.2021
gültig bis: 24.01.2031
Art des Energieausweises: nach Verbrauch
Verbrauchskennwert insgesamt: ca. 159 kWh/(m²a)
Verbrauch inkl. Warmwasser: ja

Beschreibung im Detail

Kapitalanleger aufgepasst! Diese gut gelegene Immobilie sucht aktuell einen neuen Besitzer. Das Mehrfamilienhaus wurde
um 1900 erbaut und in den 90ern saniert. Seitdem wurden immer wieder weitere wertsteigernde Maßnahmen ergriffen.
So wurde z.B. letztes Jahr in einer Wohnung die Etagenheizung gegen eine Brennwerttherme ausgetauscht.
Auch wurden Bodenbeläge modernisiert, Bäder renoviert und vieles mehr.

Die Heizung ist geteilt. So ist das EG, 1. OG und das Appartement im 2. OG an einer Gas-Zentralheizung
mit zentr. WW-Aufbereitung angeschlossen. Die beiden anderen Wohnungen werden mittels Gas-Etagenheizung
befeuert.

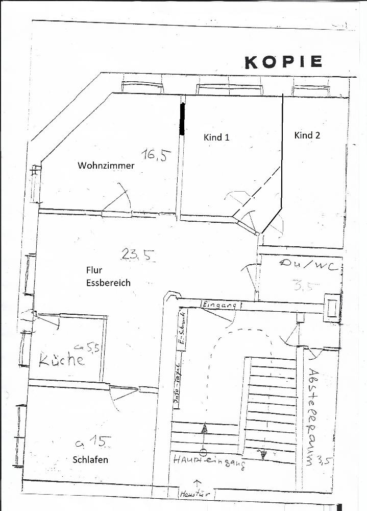
Die Aufteilung gliedert sich wie folgt:
-EG: WE1 = 4-Zimmer/Küche/Bad
-1.OG: WE 2 = 3-Zimmer/Küche/Bad/G-WC
-2.OG: WE 3 = 3-Zimmer/Küche/Bad + WE 4 = 1-Zimmer/Küche/ext. Bad
-3.OG: WE 5 = 4-Zimmer/Küche/Bad + opt. Zimmer

Die Immobilie ist ab Juli voll vermietet. Lediglich das Appartement steht aktuell
frei. Das familienfreundliche Haus besticht durch Lebendigkeit und einer hohen Eigenbetreuung
seitens der Mieter.

Die Immobilie kann ab Dezember ´26 beurkundet werden. Nehmen Sie jetzt Kontakt mit uns auf und erfahren Sie mehr.

Beschreibung der Lage

Mit ca. 68.000 Einwohnern ist Plauen die größte Stadt des Vogtlandes und die fünftgrößte Stadt im Freistaat Sachsen. In dieser Stadt warten jede Menge
Geschäfte verschiedener Branchen, wie zum Beispiel Bekleidungs- und Schuhläden, Buch- und Schreibwarengeschäfte und Drogeriemärkte auf Sie.

Ihnen bietet sich eine große Auswahl an zahlreichen Geschäften des täglichen Bedarfs, in denen Sie Ihre Einkäufe erledigen können. Soziale Einrichtungen
wie Apotheken und Ärzte sind vorhanden. Auch in Sachen Bildung hat Plauen einiges zu bieten: zwölf Grundschulen, fünf Mittelschulen und zwei
Gymnasien, das Berufsschulzentrum (BSZ) e.o.plauen für Technik und Gestaltung oder das BSZ für Wirtschaft und Gesundheit.

Plauen stellt häufig ein Ausgangspunkt großer Wanderungen im Vogtland dar, da durch das Stadtgebiet mehrere Wander- und Radwanderwege verlaufen. Sie können
Tennis- oder Fußballsport betreiben, Segeln oder mit dem Boot über die Pöhl fahren. Auch für ruhige Stunden ist die Talsperre bestens geeignet.

Verwöhnen Sie sich und Ihren Gaumen in einem der vielen Restaurants in Plauen.

Für Ihren Geschmack ist sicher auch etwas dabei! Die Stadt verfügt über sechs Bahnhöfe und Haltepunkte. Den Oberen Bahnhof, den Unteren
Bahnhof, den Westbahnhof und die Haltepunkte Jößnitz, Straßberg und Zellwolle (Leuchtsmühlenweg). Den Öffentlichen Personennahverkehr
bedienen fünf Straßenbahnlinien und vier Stadtbuslinien der Plauener Straßenbahn GmbH sowie die Regionalbuslinien des Plauener
Omnibusbetriebes und anderer Verkehrsbetriebe.

Durch die Stadt führen die Bundesstraßen 92 und 173. Durch das südöstliche Stadtgebiet führt die A 72
Hof Chemnitz mit den Anschlussstellen Pirk, Plauen-Süd und Plauen-Ost.

In Plauen befindet sich die Immobilie in Preißelpöhl - Die Bus- und Straßenbahnhaltestelle ist direkt vor der Haustüre.
10min zur City u. Bahnhof. Parkplätze sind reichlich vorhanden.

Beschreibung der Ausstattung

-Massivbauweise
-Unterkellert
-Kunststoffisolierglasfenster
-Tlw. Glastür/Funiertüren tlw. mit Glasfüllung
-Gas-Zentralheizung m. zentr. WW / Tlw. Etagenheizung
-PVC/Fliesen/Teppich/Vinyl
-Bäder mit Dusche, tlw. Wanne und Fenster, WC und Waschmaschinenanschluss
-Kabelanschluss
-Abstellkammer
-Dachboden
uvm.

Weitere Informationen

Die Angaben in diesem Exposé haben wir von unserem Auftraggeber erhalten
oder einem Verkehrswertgutachten entnommen. Wir übernehmen keine Gewähr für die
Richtigkeit dieser Angaben. Gleiches gilt für telefonisch abgefragte
Behördenauskünfte. Eine Haftung für diese Angaben ist somit ausgeschlossen.

Es gelten unsere AGB's - Diese sind einsehbar unter : www.versutus.de

Besichtigungen sind nur im Besein mit einem unserer Mitarbeiter möglich.

Cunsdorf, 22
07985 Elsterberg
Deutschland

Tel: 036621 24598
Mail: info@versutus.de

Ihre Anfrage wird verschlüsselt per https an unseren Server geschickt. Sie erklären sich damit einverstanden, dass wir die Angaben zur Beantwortung Ihrer Anfrage verwenden dürfen. Hier finden Sie unsere Datenschutzerklärung

Diese Website verwendet Cookies. Durch die Nutzung der Webseite erklären Sie sich mit der Verwendung von Cookies einverstanden.
Mehr Informationen erhalten Sie hier:Datenschutzerklärung